1
               / 
              of
              8
            
            
          Webbinglinks
Heavy duty Flatbed Truck Lumber steel Tarp
Heavy duty Flatbed Truck Lumber steel Tarp
Products Description
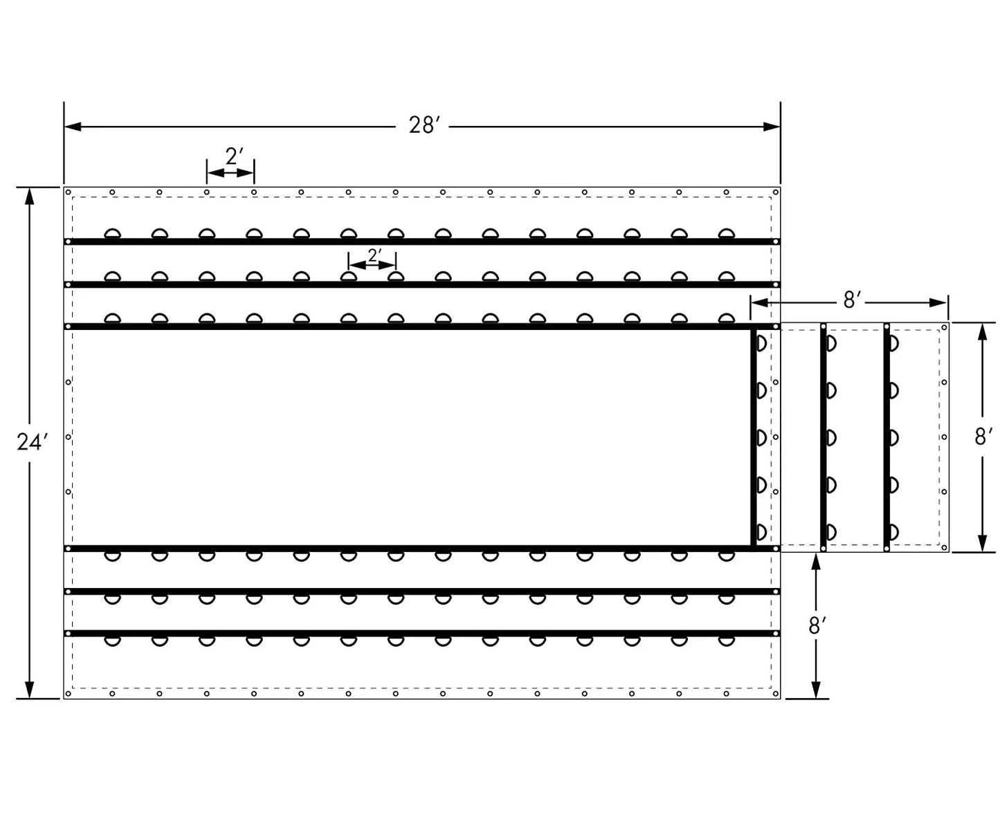
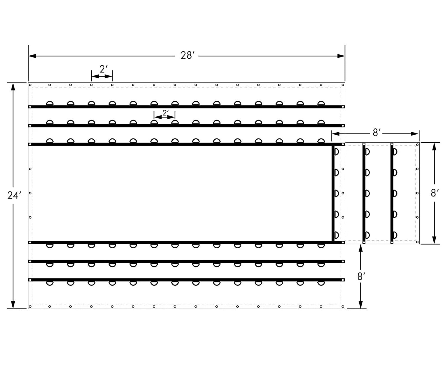
Product name    Tarpaulin
Size                      24' x 28' with 8' x 8' flap /Customized
Weight                 18OZ/Other
Material               PVC
Color                    Black/Other
OEM                     Yes
Share
 
 
 
 
 
 

 
 
   
   
   
   
   
  